[ Úvod | Články | Databáze | Diskuse | Mapa.opevneni.cz | Ukradené ropíky ]
Uživatel : 216.73.216.120 () [ Přihlásit ]

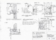
R - výkresy


Zatím uvádím některá R čísla vybavení l.o.Postupně je budu doplňovat nově zjištěnými a brzy doplním i správné názvosloví u vybavení.

definice:R a příslušné číslo je číslo výkresu konkrétního prvku tzv.opakovaných detailů.Když jsou třeba stejná Rčísla a liší se jen koncovka např. B1,B2,....tak se jedná o ten samí výkres a číslo detailu. /n znamená poválečnou výrobu anebo poválečnou úpravu prvku.Díky těmto číslům,které byly k jednotlivým prvkům přiřazeny se dalo jednoduše orientovat ve výkresové dokumentaci.Kdy např. na polírním výkresu jsou u prvků,které vyžadují samostatnou výkresovou dokumentaci příslušná Rčísla a podle toho si člověk najde příslušný výkres s detaily prvku.Většinou R číslo bylo jediný oficiálně zavedený název u vybavení,které se dnes v bungrologické a laické obci označují chybně vzory např.dveře vz.37,dveře vz.38,mříže vz.37 atd....Nikdy sice nezmizí neoficiální názvy a to hlavně díky pochopení pro laickou veřejnost.I tak zde předkládám oficiální názvy.

R2 – mřížové dveře (poválečné)

R238 – mřížové dveře (lidový název vz.37)

R239 – silnostěnné dveře (lidový název vz.37)

R241A – plechová trouba (přívod vzduchu k ventilátoru) + krycí mřížka

R241 B1 - trouba pro odvod plynů u zdi 50cm (starší provedení)

R241 B2 - trouba pro odvod plynů u zdi 60cm (starší provedení)

R241 B3 - trouba pro odvod plynů u zdi 80cm (starší provedení)

R241 B4 - trouba pro odvod plynů u zdi 100cm (starší provedení)

R244 - vchodová střílna

R245 – "hlavní" střílna „normální“

R246 – trouba periskopu

R284A – plechová trouba (přívod vzduchu k ventilátoru) + krycí mřížka u zeslabených Lo

R284 B4 a B5 – trouba pro odvod plynů u zeslabených Lo (starší provedení)

R410 - drážka na chlazení hlavní

R432 A/n – poválečná krycí mřížka výdechů ventilace

R432 B/n – ventilátor poválečný

R432 B - trouba pro odvod plynů u zdi 40cm (novější provedení)

R432 B1 - trouba pro odvod plynů u zdi 50cm (novější provedení)

R432 B2 - trouba pro odvod plynů u zdi 60cm (novější provedení)

R432 B3 - trouba pro odvod plynů u zdi 80cm (novější provedení)

R432 B4 - trouba pro odvod plynů u zdi 100cm (novější provedení)

R437 - mřížové dveře pro otvor 130x130 cm (objekt KPÚV starý typ, tedy „G“)

R443 - mřížové dveře (lidový název vz.38)

R444a – silnostěnné dveře (lidový název vz.38)

R444a/n – silnostěnné dveře (poválečné)

Skluz C – Granát.skluz

R454 - rám 60 st. (betonážní výkres) ???

R457 - dveře pancéřové dvoukřídlé (objekt KPÚV, tedy objekty „K“)

R458 - dveře mřížové (objekt KPÚV, tedy objekty „K“)

R460 - železný sklopný stolek a věšák LO.

Případně prosím o zaslání na e-mail dalších R týkajících se L.o.,abych je mohl doplnit.

Zdroje a literatura:

  1. Polírní výkresy ŘOP pro A-120Z,A-200Z a E
  2. R výkresy a to konkrétně R444a,R432,R241,R284
  3. Díky Tomášovi Svobodovi za doplnění!



Vloženo: 1.11.2006
Autor: Vladek Vácha
Copyright ropiky.net ©1999-2025        Ochrana osobních údajú (GDPR)